设计100%用心
施工100%放心
服务100%贴心
0754-88722527
99886527
首页
关于我们
案例展示
家装案例
工装案例
全景案例
设计团队
工程优势
新闻资讯
企业动态
行业资讯
风水文化
装修常识
常见问题
联系我们
加入我们
工装案例
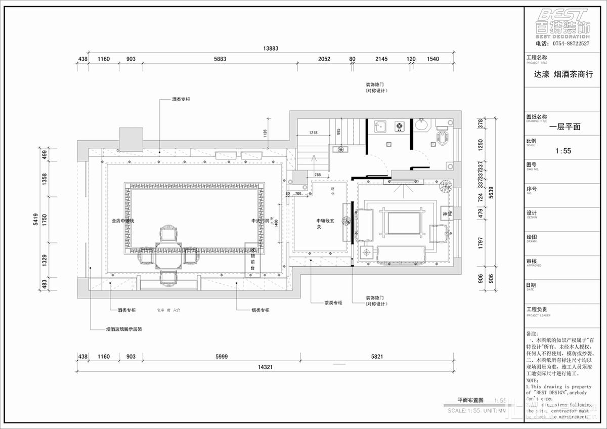
濠江区尚品烟茶酒商行
作者:admin
时间:2014年12月05日
标签:
达濠装修
濠江铺面装修
濠江铺面装修设计
汕头装修设计
汕头设计公司
人气:
-
濠江区尚品烟茶酒商行 中式风格商行
在线咨询
预约设计
官方微信
关注百特装饰公众号
咨询热线
0754-88722527
电话咨询
QQ咨询
预约设计
关于我们